400-167-9158
13370076925
企业新闻
您的位置: 首页 > 暖通课堂 > 企业新闻

暖通课堂

联系我们

上海青鱼_中国地暖保温材料及建筑节能方案供应商

地址:中国上海市茸兴路285号702
手机:13370076925

咨询热线400-167-9158

青鱼保温 | 装配建筑工业化干式地暖贡献大

发布时间:2022-07-29人气:

装配建筑工业化 干式地暖贡献大
装配式建筑中保温、地暖辐射采暖对装配率计算细则汇总
一、概念准备
1.1 装配式建筑(Prefabricated building)
是指由预制部品部件在工地装配而形成的建筑。随着科学技术的发展和建筑业的进步,装配式建筑是发展方向。建筑工业化、信息化的两化融合将通过装配式建筑落到实处。

传统的建筑主体结构和部品几乎全在工地现场制作而成,是传统的劳动密集型产业,建筑行业也正在进行着由劳动密集型向技术密集型的转变。
装配式建筑的优点:
(1)大量的建筑部品由车间生产加工完成。主体结构的构件像外墙板、内墙板、叠合板、阳台、预制柱等自不必说;相对比较独立的内装部品也由工厂完成。比如墙体与保温隔热装饰一体化、干式工法的高强度地暖;
(2)内装提倡干式装修,减少传统湿作业,原始现浇作业大大减少。比如干式工法的楼地面可以减少传统传统湿法地暖的豆石混凝土回填,契合装配式建筑内装精神。
(3)设计的标准化和管理的信息化程度提高,整个装配式建筑的性价比会越来越高。
(4)符合绿建精神“四节一环保”等。
一般来说,装配式建筑通过三个大的方面来实现装配率的提升,
一是主体结构
二是围护墙和内隔墙
三是装修和设备管线
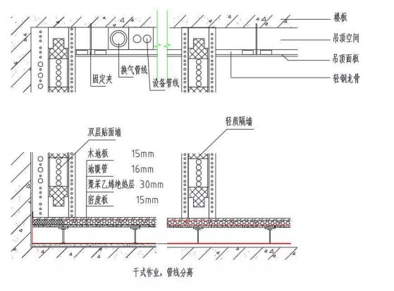
干式地暖对装配率的贡献主要体现在干式工法的楼地面和管线分离。有必要先对这些概念进行厘清。
1.2 装配率 Prefabricated ratio
单体建筑室外地坪以上的主体结构、围护墙和内隔墙、装修和设备管线等采用预制部品部件的综合比例。
1.3 干式工法 non-wet construction
采用干作业施工的建造方式。
1.4 架空地板 raised floor
在地面或楼板上架设一定高度的架空夹层,主要用于敷设给排水、采暖、通风、电气等管线和设备。
1.5管线分离 pipe & wire detached from structure system
将设备与管线设置在结构系统之外的方式。
当然至于干式地暖在干式工法楼地面和管线分离方面能增加多少装配率这要根据其应用比例,并结合各个地方的规范计算而得。



二 装配率计算细则汇总
2.1 国标GB/T51129-2017《装配式建筑评价标准》


由截图可知围护墙与保温、隔热、装饰一体化 应用比例50%~80%,评价分值2~5。“围护墙与保温、隔热、装饰一体化”这句话的描述还不够清晰,还有进一步细化解读的空间,目前有三种理解,这就给地方规范提供了进一步解读、规范的余地。
(1)预制墙体的时候就把保温层完成,现场完成拼装。如下图所示(网络图):
(2)采用保温装饰一体化板系统。需要后期施工粘贴、锚固的预制墙体之上。产品如下图所示(网络图):


(3)第三种情况就是,墙体+保温+装饰全部一体化!(网络图)


现场拼装
装修和设备管线方面,干式地暖由于无需豆石混凝土回填,不含湿作业,可以在干式工法楼地面和管线分离两个方面得分。传统湿法地暖带水回填混凝土作业,且地暖的加热管被细石混凝土包裹,与结构未分离,故无法为装配率加分,因而采暖系统宜采用干式工法施工的地面辐射供暖方式。
具体而言,干式工法楼面、地面 应用比例≥70% 得6分;管线分离 应用比例50%~70% 得4~6分。当然客观讲,仅靠干式地暖很难讲这个分值拿完。比如管线分离,还涉及到顶面管线、墙体管线和地面管线,这个是有一定比例的,具体由相应规则计算获得。
同时,我们也可以这样理解,由于国标出现的时间较晚为2017年,那么地标如果在2017年之前发布的,当地的装配率计算应重点参考其后发布的国标,至于到底算多少,具体问题具体分析了。
管线分离与否

2.2 山东
2018山东省工程建设标准 DB37/T 5127-2018 J14404 装配式建筑评价标准


山东省的标准与国标构成类似,但分值略有不同。
围护结构和内隔墙方面,围护墙与保温、装饰一体化 应用比例50%~80%时,2~5分;
装修和设备管线中 干式工法楼面、地面,应用比例≥60%,5分(国标6分);管线分离应用比例50%~70% 3~5分(国标4~6分)
对于干式地暖,山东省毫不含糊,也较为明确的规定其应用。
根据《山东省装配式住宅建筑全装修技术要求(试行)》(2019年7月1日到期,供参考)规定

4.1 采暖系统
采暖系统宜采用干式工法施工的地面辐射供暖方式,并于楼地面集成设计安装完毕,地面辐射供暖系统宜与装配式楼地面的连接构造集成,散热器的安装位置应能使室内温度均匀分布。
2.3 江苏
江苏省装配式建筑预制装配率计算细则 苏建科[2017] 39号
江苏省的计算规则不好找,网上只能找到一个试行版,好在新的装配率计算规则将于本年底发布实施,根据新规则,江苏省这边管线分离最多可以得到4.5分的加分(仅供参考,以正式版公布的加分细则为准),先看看试行版。


试行版明确规定了,楼地面干式铺装(成品地板干式铺装、架空地板)是可以考虑计算装配率。这就导致目前全屋铺木地板(并不在意木地板下面的地暖是干式还是湿式)都可以算分的情况,
后面这个表格会让人看得不是很明白,只能大体知道内装建筑部品(含楼地面干式铺设)总权重为0.2(相当于20分)不过这个情况将会在新的装配率计算细则出来后结束。
2.4上海
上海市装配式建筑单体预制率和装配率计算细则(试行) 沪建建材【2016】601号
此规范在2017年之前出台。


该规范对管线分离做了说明,摘录如下:
管线分离以可检修和易更换为分离的标志,对于裸露室内空间以及敷设在地面架空层、非承重墙体空腔和吊顶内的电器、给水、排水和采暖管线应认定为管线分离;对于埋置在结构构件内(不含横穿)或敷设在湿作业地面垫层内的管线应认定为管线未分离。
这就明确说明传统湿法地暖的加热管不能认定为管线分离!
2.5浙江
浙江省 装配式建筑评价标准 DB33/T1165-2019


浙江省新鲜出炉的《装配式建筑评价标准》(2019年8月1日实施)做了非常细致的规定。
为了避免围护墙的结构、墙体、保温、装饰一体化的理解,特别的规定了三种情况:
(1)墙体与保温隔热、装饰一体化(墙、保温、装饰全部一体),这个得分最高,50%~80%应用比例,2~5分
(2)采用保温隔热与装饰一体化板(保温、装饰一体),比例≥8%,3.5分
(3)采用墙体与保温隔热一体化(墙、保温一体),比例50~80%,1.2~3.0分
这是所以地标中,规定最细致的了。
2.6 安徽
合肥市装配式建筑装配率计算规则(征求意见稿)合建产【2018】5号
安徽省的更难找,网上只找到一个合肥市的。对于保温工程而言,这是一个比较特殊的地方。根据其规定:


围护墙和内隔墙部分:围护墙与保温、隔热、装饰一体化 比例50~80%, 2~5分,与国标同;
装修和设备管线中,干式工法楼面、地面 比例≥70%, 6分,与国标同;
管线分离,比例50%~70%,4~6分,与国标同。
所不同的还增加了10分给装配式建筑应用建筑业新技术,比如BIM技术,绿色建筑啥的,二星级以上的应用又可以增加0.5~1分之类的,来配合推广绿建。
2.7 北京
关于加快发展装配式建筑的实施意见


2.8 重庆
重庆市装配式建筑装配率计算细则(试行)渝建〔2017〕743号


围护墙与保温、隔热装饰一体化部分重庆市也体贴的分了两种类型。
(1)围护墙与保温、隔热、装饰一体化 比例50~80% ,2~5分
(2)围护墙与保温隔热一体化(不含装饰)比例50~80% ,1.4~3.5分
结语:
干式地暖可在干式工法楼地面中露上一手,可以用较低的成本提升装配式建筑的装配率。也是装配式建筑干式内装的最佳选择。青鱼干式地暖系统为装配式建筑贡献力量

推荐资讯